Ranheim senterområde
- Hvor:
Trondheim - Når:
2011—2018 - Hva:
- Plan og utredning
- Oppdragsgivere:
- Ranheim Utvikling as
- Veidekke Eiendom as
- Størrelse:
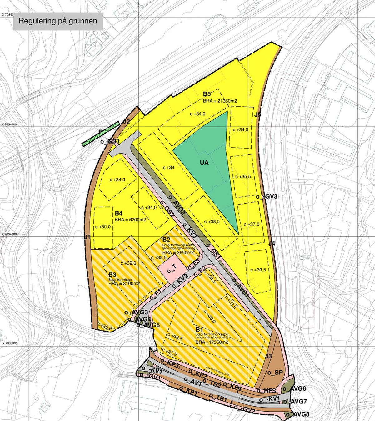
48100m2
Boliger: BRA 41000 m2 /ca 450 boenheter (6300 m2 kan erstattes med kontor/tjenesteyting) Forretning/Bevertning: BRA 6000 m2 Barnehage BRA 1100 m2.

I 2011 vant Arkitektskap parallelloppdraget for utbygging av Ranheim senterområde. Vi ble engasjert videre for skisseprosjektering og detaljregulering.
Målsettingen med planen er å utvikle et levende senterområde på Ranheim, med allsidig blanding av boliger, generøse utearealer, barnehage og torg med nærsenter, butikker samt service- og kontorlokaler.
Planområdet ligger sentralt på Ranheim, øst i Trondheim kommune. Tomten er svakt skrånende fra syd mot nord, med utsikt mot Trondheimsfjorden. Den avgrenses i nordvest av jernbanen og Ranheim stasjonsområde, Ranheimsvegen i sør og øst samt av godsporene til Ranheim fabrikker i øst og vest.
Den eksisterende Peder Myhres vei utgjør en akse gjennom planområdet fra sydøst til nordvest. Veien fungerer som områdets interne samlevei og utnyttes som et sentralt og strukturerende element med hensyn til orientering av ny bebyggelse. Den åpne kvartalsformen med grønne gårdsrom, skjermer mot støy fra vei og bane samt ivaretar solforhold og utsikt over Trondheimsfjorden.
Publikumsrettede funksjoner som nærsenter, barnehage og næring er samlet rundt bydelstorget på vestsiden av Peder Myhres vei, med kort avstand fra hovedadkomsten inn til planområdet. På planområdets søndre del, i tilknytning til nærsenteret, planlegges det bussholdeplass for Metrobussprosjektet i Trondheim.
Prosjektet ble stoppet i forbindelse med utarbeidelse av kommunedelplanen for jernbane i 2018, der det ble lagt båndleggingssone over planlagt trasé for dobbeltspor gjennom Ranheim.












